Fabian 21

Fabianinkatu 21

Kaartinkaupunki, Fabianinkatu 21, 00130 Helsinki
Uudistunut Fabian 21 tarjoaa monipuoliset palvelut sekä modernit pääkonttoritason tai hybridityöhön soveltuvat tilat keskeisellä sijainnilla.

Talo on remontoitu kauttaaltaan ja samalla pääsisäänkäynti siirtyi Unioninkadun puolelta Fabianinkatu 21:een, johon valmistui edustava ja näyttävä aulatila. 

Uudistuneet tilat tarjoavat henkilökunnallenne työhyvinvointia tukevan työympäristön, joka on muokattavissa toiveidenne mukaan noin 200 - 3000 neliön toimistoiksi. 

Fabian 21 sijaitsee Kaartinkaupungin bisneskeskustan ytimessä. Lähellä ovat merenranta, puistot ja Vanha kauppahalli sekä alueen boutique-hotellit ja huippuravintolat. Kasarmitorilla on myös iso ruokakauppa ja posti. Edistyksellisiä toimitiloja historiaa huokuvissa, idyllisissä kortteleissa ja sivistyneen rennossa tunnelmassa. Kaartinkaupunki on uuden ja vanhan viehättävä sekoitus. Keskellä Helsinkiä, mutta omassa rauhassaan.

Katso Fabian 21 -video 

Fabian 21:ssä vastuullisuus on keskeisessä roolissa. Tässä talossa käytetään 100-prosenttisesti uusiutuvaa energiaa, jota myös katolle asennettu aurinkovoimala tuottaa ja vähentää entisestään talon ympäristövaikutuksia. BREEAM In-Use Excellent -tason ympäristösertifikaatti kertoo talon sitoutumisesta kestävään kehitykseen.

 

Kiinteistön tiedot

Saavutettavuus

Fabian 21 sijaitsee Kauppatorin, Esplanadin sekä Kasarmitorin välittömässä läheisyydessä. Kulkuyhteydet ovat loistavat, sillä rautatie- ja Helsingin yliopiston metroasemalle on 600 metriä ja raitiovaunut kulkevat aivan läheltä.

Palvelut

Kiinteistössä toimii ravintola Scolare sekä lounasravintola Bank. Tapahtumatalo Bankin kautta voi varata myös neuvottelutiloja ja järjestää tapahtumia. Työhyvinvointia tukee talossa toimiva Elixian kuntosali. Fabian 21:n erinomaiset julkiset kulkuyhteydet, pyöräparkit, talon oma kaupunkipyörä, sähköautojen latauspisteet ja uudistetut sosiaalitilat kannustavat talon käyttäjiä kestävään liikkumiseen.

Pysäköinti

Kiinteistössä on autopaikkoja yhteensä 50 kpl hallissa ja 29 kpl pihalla. Aimo Park Kasarmitorin ja Aimo Park Erottajan pysäköintilaitokset ovat myös lähellä.

Vapaat tilat

  • Toimistotila – 7. kerros

    Ainutlaatuinen kattohuoneisto, jossa on oma parveke ja ikkunat kolmeen ilmansuuntaan. Soveltuu monitoimitilaksi, joka räätälöidään toiveiden mukaan.
    • Pinta-ala

      2336 m2

    Ota yhteyttä

  • Toimistotila – 3. kerros

    Peruskorjaus ja tilaratkaisut toteutetaan toiveiden mukaan. Tilaan on kaksi sisäänkäyntiä.
    • Pinta-ala

      1205 m2

    Ota yhteyttä

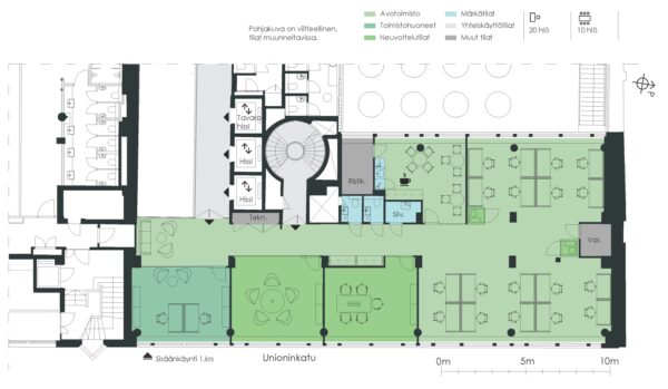
  • Toimistotila – 5. kerros

    Toimisto jossa on tehokasta tilankäyttöä. Osasta tilaa näkymät Kasarmitorille. Valoaukko keskellä huoneistoa luo ainutlaatuisen valaistuksen.
    • Pinta-ala

      1131 m2

    Ota yhteyttä

  • Toimistotila – 5. kerros

    Toimisto jossa on tehokasta tilankäyttöä. Esteettömät näkymät Kasarmitorille. Valoaukko keskellä huoneistoa luo ainutlaatuisen valaistuksen. Uudistettu sisäänkäynti historiaa huokuvassa rappukäytävässä.
    • Pinta-ala

      628 m2

    Ota yhteyttä

  • Toimistotila – 5. kerros

    Avotoimisto jossa tilankäyttö on tehokasta. Valoaukko takaa huoneiston ainutlaatuisen valaistuksen.
    • Pinta-ala

      500 m2

    Ota yhteyttä

  • Toimistotila – 2. kerros

    Toimistotilaa, johon toteutetaan remontilla toivotut tilaratkaisut.
    • Pinta-ala

      276 m2

    Ota yhteyttä

  • Toimistotila – 3. kerros

    Valoisa ja kompakti tila hyvällä pohjalla.
    • Pinta-ala

      246 m2

    Ota yhteyttä

  • Toimistotila – 4. kerros

    68 m2 kokoinen siisti toimistohuone. Tiloissa on kerroksittain yhteinen wc ja keittiötila. Lisäksi 5. kerroksesta löytyy yhteinen kokoustila, jota voi käyttää veloituksetta. Aulapalvelu ja sähköt sisältyvät vuokraan.
    • Pinta-ala

      68 m2

    Ota yhteyttä

  • Toimistotila – 3. kerros

    33 m2 kokonen siisti toimistohuone. Tiloissa on kerroksittain yhteinen wc ja keittiötila. Lisäksi 5. kerroksesta löytyy yhteinen kokoustila, jota voi käyttää veloituksetta. Aulapalvelu ja sähköt sisältyvät vuokraan.
    • Pinta-ala

      33 m2

    Ota yhteyttä

Nimi Kerros Pinta-ala Saatavuus Kuvaus
Toimistotila 7 2336 m2 Vapaa Ainutlaatuinen kattohuoneisto, jossa on oma parveke ja ikkunat kolmeen ilmansuuntaan. Soveltuu monitoimitilaksi, joka räätälöidään toiveiden mukaan.
Toimistotila 3 1205 m2 Vapaa Peruskorjaus ja tilaratkaisut toteutetaan toiveiden mukaan. Tilaan on kaksi sisäänkäyntiä.
Toimistotila 5 1131 m2 Vapaa Toimisto jossa on tehokasta tilankäyttöä. Osasta tilaa näkymät Kasarmitorille. Valoaukko keskellä huoneistoa luo ainutlaatuisen valaistuksen.
Toimistotila 5 628 m2 Vapaa Toimisto jossa on tehokasta tilankäyttöä. Esteettömät näkymät Kasarmitorille. Valoaukko keskellä huoneistoa luo ainutlaatuisen valaistuksen. Uudistettu sisäänkäynti historiaa huokuvassa rappukäytävässä.
Toimistotila 5 500 m2 Vapaa Avotoimisto jossa tilankäyttö on tehokasta. Valoaukko takaa huoneiston ainutlaatuisen valaistuksen.
Toimistotila 2 276 m2 Vapaa Toimistotilaa, johon toteutetaan remontilla toivotut tilaratkaisut.
Toimistotila 3 246 m2 Vapaa Valoisa ja kompakti tila hyvällä pohjalla.
Toimistotila 4 68 m2 Vapaa 68 m2 kokoinen siisti toimistohuone. Tiloissa on kerroksittain yhteinen wc ja keittiötila. Lisäksi 5. kerroksesta löytyy yhteinen kokoustila, jota voi käyttää veloituksetta. Aulapalvelu ja sähköt sisältyvät vuokraan.
Toimistotila 3 33 m2 Vapaa 33 m2 kokonen siisti toimistohuone. Tiloissa on kerroksittain yhteinen wc ja keittiötila. Lisäksi 5. kerroksesta löytyy yhteinen kokoustila, jota voi käyttää veloituksetta. Aulapalvelu ja sähköt sisältyvät vuokraan.

Video

Yhteystiedot

Haluatko lisätietoa kohteesta?

Kaartinkaupunki, Fabianinkatu 21, 00130 Helsinki