Korkeavuorenkatu 45

Kaartinkaupunki, Korkeavuorenkatu 45, 00130 Helsinki
An office building of many possibilities ​in an excellent location next to Esplanade Park will undergo a full renovation.

The property located in the heart of Helsinki will be completely renovated for a new or new tenants. Starting the project requires a 50% pre-letting rate. The property's strengths are its central location next to the Esplanade Park, covered and heated atrium, roof terrace and jacuzzis, sauna facilities, gym, modern work spaces, lobby service, auditorium and restaurant facilities. The property’s ESG level will be top-class, the goal is a LEED Platinum –level environmental certificate and energy efficiency class A.

The property is located in Kaartinkaupunki, which is an emerging business cluster in the heart of Helsinki. It is the chosen location for companies like SEB, EY, Rochier, Danske Bank, Taaleri, Swedbank, Solita, Borenius, Castren & Snellman, Krogerus and HouseMarque (Sony), among others. The area is perfect for businesses that value the service level and transport options of the city centre, but who prefer a peaceful office environment or privacy at the same time. In addition, the most high-quality restaurant and after-work services in the country are located next door to make sure that staff and guests are comfortable.

As working life is undergoing a transformation, the centrally located Korkeavuorenkatu 45 is a pioneer of future work with its high-quality renovated premises, flexibility, space efficiency and ESG criteria. The property will impress your staff as well as your guests. 

Urban Collection

Korkeavuorenkatu 45 is one of the Sponda’s five Urban Collection buildings. These buildings are undergoing full refurbishment, set to be completed in 2026-2027, ensuring state-of-the-art facilities that blend historic charm with modern functionality. Suitable for both large corporations and small startups, this collection offers versatile office solutions that cater to a diverse range of business needs.

Get to know Sponda’s Urban Collection

Property details

Accessibility

The location in the heart of the city offers public transport within a short walking distance.

Services

The services of the city centre are all within walking distance. The nearest restaurant can be found in the same building.​

Parking

Parking facilities are nearby – there is a storage for bicycles in the basement and Aimo Park Erottaja parking garage for cars under the property.

Available spaces

  • Office space – K2-6 floor

    This impressive property is ideally suited as a headquarters for a large-sized company that values a historical yet modern environment and functional spatial solutions, or as a multitenat building for 2-4 mid-sized users. The building will be completely renovated and extended with two floors to meet today’s requirements to the last detail. The Art Nouveau building, with its many possibilities, will be a visually impressive property featuring a unique covered atrium and a cosy roof terrace.
    • Floor area

      6024 m2

    Contact us

  • Office and retail space – 1st floor

    The property has an impressive entrance through a heated, bright, glass-roofed, 15-meter-high atrium. It is possible to implement a bright and representative lobby with reception services on the entrance floor. In addition, the 1st floor contains meeting rooms, office space, retail/cafe space and restaurant space. The lobby area can be converted into a seminar and party space for evening use. Spatial solutions are implemented according to wishes.
    • Floor area

      962 m2

    Contact us

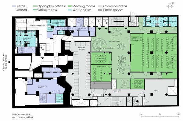
  • Office space – K1 floor

    Meeting rooms which can be converted into a large auditorium thanks to the moving walls, are planned for the K1 floor. As well as a gym, a bicycle storage room, and auxiliary spaces for retail units. In addition, the spectacular spiral staircase connects the 1st floor and the K1 floor, bringing light and unity between the spaces. Spatial solutions are implemented according to wishes.
    • Floor area

      852 m2

    Contact us

  • Office space – 4th floor

    Flexible office and meeting room space on 4th floor. Possible to connect floors with an internal staircase. Atrium brings additional natural light to the premises. Spatial solutions are implemented according to wishes.
    • Floor area

      846 m2

    Contact us

  • Office space – 3rd floor

    Flexible office and meeting room space on 3rd floor. Possible to connect floors with an internal staircase. Atrium brings additional natural light to the premises. Spatial solutions are implemented according to wishes.
    • Floor area

      844 m2

    Contact us

  • Office space – 2nd floor

    Flexible office and meeting room space on 2nd floor. Possible to connect floors with an internal staircase. Atrium brings additional natural light to the premises. Spatial solutions are implemented according to wishes.
    • Floor area

      843 m2

    Contact us

  • Office space – 5th floor

    Flexible office space on 5th floor. Possible to connect floors with an internal staircase. Atrium brings additional natural light to the premises. Spatial solutions are implemented according to wishes.
    • Floor area

      838 m2

    Contact us

  • Office space – 6th floor

    An open office, lounge and sauna facilities can be implemented on the top floor. There are also two gorgeous roof terraces on this floor. Spatial solutions are implemented according to wishes.
    • Floor area

      534 m2

    Contact us

  • Storage space – K2 floor

    Social facilities (including showers, lockers and saunas), drying rooms and storage spaces are planned for the K2 floor. Spatial solutions are implemented according to wishes.
    • Floor area

      305 m2

    Contact us

Name Floor Area Availability Description
Office space K2-6 6024 m2 Free This impressive property is ideally suited as a headquarters for a large-sized company that values a historical yet modern environment and functional spatial solutions, or as a multitenat building for 2-4 mid-sized users. The building will be completely renovated and extended with two floors to meet today’s requirements to the last detail. The Art Nouveau building, with its many possibilities, will be a visually impressive property featuring a unique covered atrium and a cosy roof terrace.
Office and retail space 1 962 m2 Free The property has an impressive entrance through a heated, bright, glass-roofed, 15-meter-high atrium. It is possible to implement a bright and representative lobby with reception services on the entrance floor. In addition, the 1st floor contains meeting rooms, office space, retail/cafe space and restaurant space. The lobby area can be converted into a seminar and party space for evening use. Spatial solutions are implemented according to wishes.
Office space K1 852 m2 Free Meeting rooms which can be converted into a large auditorium thanks to the moving walls, are planned for the K1 floor. As well as a gym, a bicycle storage room, and auxiliary spaces for retail units. In addition, the spectacular spiral staircase connects the 1st floor and the K1 floor, bringing light and unity between the spaces. Spatial solutions are implemented according to wishes.
Office space 4 846 m2 Free Flexible office and meeting room space on 4th floor. Possible to connect floors with an internal staircase. Atrium brings additional natural light to the premises. Spatial solutions are implemented according to wishes.
Office space 3 844 m2 Free Flexible office and meeting room space on 3rd floor. Possible to connect floors with an internal staircase. Atrium brings additional natural light to the premises. Spatial solutions are implemented according to wishes.
Office space 2 843 m2 Free Flexible office and meeting room space on 2nd floor. Possible to connect floors with an internal staircase. Atrium brings additional natural light to the premises. Spatial solutions are implemented according to wishes.
Office space 5 838 m2 Free Flexible office space on 5th floor. Possible to connect floors with an internal staircase. Atrium brings additional natural light to the premises. Spatial solutions are implemented according to wishes.
Office space 6 534 m2 Free An open office, lounge and sauna facilities can be implemented on the top floor. There are also two gorgeous roof terraces on this floor. Spatial solutions are implemented according to wishes.
Storage space K2 305 m2 Free Social facilities (including showers, lockers and saunas), drying rooms and storage spaces are planned for the K2 floor. Spatial solutions are implemented according to wishes.

Video

Contact information

Contact us about

Kaartinkaupunki, Korkeavuorenkatu 45, 00130 Helsinki