Korkeavuorenkatu 35

Kaartinkaupunki, Korkeavuorenkatu 35, 00130 Helsinki
Designed by architect Lars Sonck, Korkeavuorenkatu 35 is an impressive stone building in Art Nouveau style. This premium historic building was completed in 1907 and originally served as the headquarters of the Helsinki Telephone Association.

It is situated in an excellent location in a premium area in the centre of Helsinki. The location has excellent public transport connections. The services of the city centre are all within a short distance.

In 2011, the exterior and interior of the building were renovated and converted into modern office facilities in collaboration with the Helsinki City Museum. The magnificent facade and staircase of the building are protected architectural features. This unique Kivilinna property has 2,699 m² of modern and premium office space for rent, and the facilities can be adjusted to tenants’ specific needs.

The property has been awarded a BREEAM In-Use Very Good -level certification. BREEAM (Building Research Establishment Environmental Assessment Method) is an international green building certification system aimed at reducing the environmental impact of the use of buildings as well as the development of healthier working environments.

There are numerous restaurants, hotels and conference centres in the area. The Market Hall and the Market Square are also nearby.

Property details

Accessibility

Korkeavuorenkatu is located in the heart of Helsinki, in the vicinity of the Market Square, Esplanadi and Kasarmitori Square. The closest tram stop, for lines 2 and 3, is on the Market Square.

Services

There are numerous restaurants, hotels and conference centres in the area. The Market Hall and the Market Square are also nearby.

Parking

The property has seven parking spaces in the courtyard. The parking facilities of Aimo Park Kasarmitori and Aimo Park Erottaja are also nearby.

Available spaces

  • Office space – 3rd floor

    Multifunctional office space, possibility to combine Kasarmikatu 36, 5th floor 831m² space and Korkeavuorenkatu 35, 3rd floor 511m² space into one 1,342m² space.
    • Floor area

      1342 m2

    Contact us

  • Office space – 4th floor

    An multi-function office space in good condition in an atmospheric Art Nouveau style castle. Spacious, bright rooms with high ceilings.
    • Floor area

      556 m2

    Contact us

  • Office space – 3rd floor

    A unique office space in an atmospheric Art Nouveau style castle. Spacious, bright rooms with high ceilings.
    • Floor area

      511 m2

    Contact us

  • Office space – 2nd floor

    A unique office space in an Art Nouveau style castle. Spacious rooms with high ceilings offer many possibilities for use.
    • Floor area

      493 m2

    Contact us

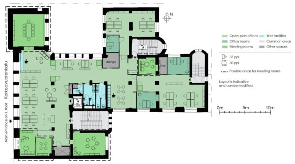
  • Office space – 1st floor

    A unique office space in an Art Nouveau style castle. Specious rooms offer many possibilities for use.
    • Floor area

      346 m2

    Contact us

  • Office space – 1st floor

    Neat and compact office space on street-level.
    • Floor area

      63 m2

    Contact us

Name Floor Area Availability Description
Office space 3 1342 m2 Free Multifunctional office space, possibility to combine Kasarmikatu 36, 5th floor 831m² space and Korkeavuorenkatu 35, 3rd floor 511m² space into one 1,342m² space.
Office space 4 556 m2 Free An multi-function office space in good condition in an atmospheric Art Nouveau style castle. Spacious, bright rooms with high ceilings.
Office space 3 511 m2 Free A unique office space in an atmospheric Art Nouveau style castle. Spacious, bright rooms with high ceilings.
Office space 2 493 m2 Free A unique office space in an Art Nouveau style castle. Spacious rooms with high ceilings offer many possibilities for use.
Office space 1 346 m2 Free A unique office space in an Art Nouveau style castle. Specious rooms offer many possibilities for use.
Office space 1 63 m2 Free Neat and compact office space on street-level.

Video

Contact information

Contact us about

Kaartinkaupunki, Korkeavuorenkatu 35, 00130 Helsinki